
Loading...
Welcome to Sequoia, a new development by Arada Developer at Masaar, Sharjah bringing a collection of luxury townhouses and signature villas
7H6X+23 Masaar Skate Park - Al Suyoh Suburb - Tilal - Sharjah - United Arab Emirates
Q4 2025
AED 9,460,000
Welcome to Sequoia, a new development by Arada Developer at Masaar, Sharjah bringing a collection of luxury townhouses and signature villas. Uplifting the standard and inspiring the class for the residents to have an iconic approach to living. It's really a way to a healthy and active life where there are large green areas with a multitude of experiences to explore. Where you can walk with the trees, and have magic with the forested landscapes. A refreshing dip of magic in the lush greenery which is an epitome of green. Away from the city yet close to the famous spots. Wide forest areas and spots for fun and entertainment, recreational and leisure. Where running tracks, cycling areas, yoga and picnic spots, meditation spaces bring convenience which is desirable. Its outdoor facilities and services really invite users to live up to the expectations and enjoy a healthy way to live. One of the most beautiful and charming land where the natural greenery and forested coverage offers a unique environment. Where trees outnumber people offering a truly active and elegant lifestyle. A range of outdoor facilities and spaces, green areas and green spine wind through the community invites you to spend time. With your family and loved ones celebrate life, having fun in leisure, picnic, dining, walkways, cycling, yoga and meditation. Living in the Masaar has its own beauty and business where you will get to enjoy the outstanding services and natural spaces for fun and entertainment. Come and bless yourself with the natural beauty and healing power of nature's best elements. Book your home and unleash your creativity amidst the natural world and a paradise. While also including proximity that indulges in retails, dining and sports. Famous communities like Aljada, Nasma Residences, Burj Khalifa, Burj Al Arab, Downtown Dubai, Dubai Marina, and Dubai international Airport are just minutes away from the premises. Come and seek refuge in this Marvellous space for lifestyle.
Explore the beauty and elegance of this development


Exceptional features designed to elevate your lifestyle
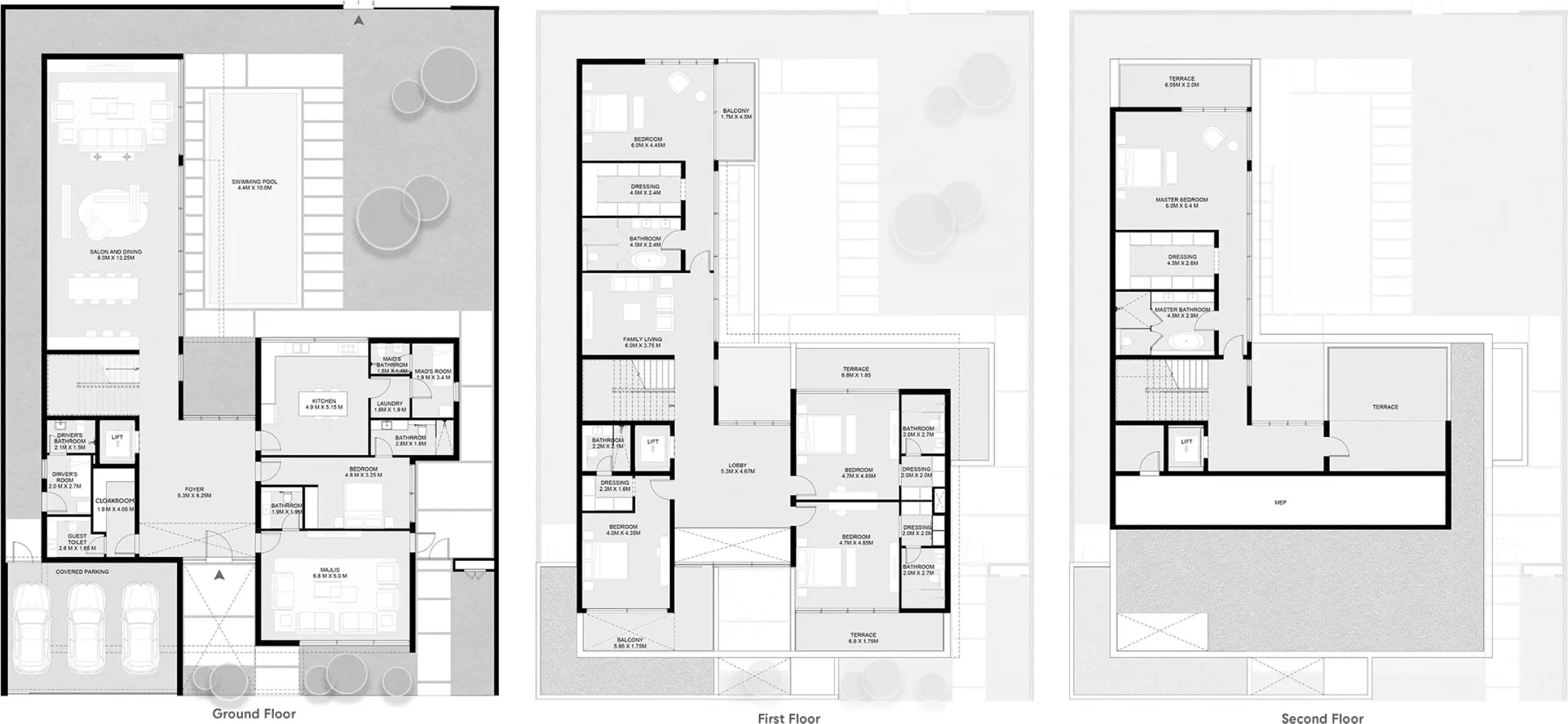
Explore our range of meticulously designed units
7 Units Available • Starting from AED 9,460,000
Showing 6 of 7 layouts
Unit F2-V108
Unit F2-V106
Unit F2-V119
Unit F2-V118
Unit F2-V117
Unit F2-V100
🏠Combined
Choose from our premium finishing packages
Choose from a range of well-equipped homes. Each residence at Sequoia combines nature-inspired design and features with the latest smart home technology, providing you with convenience and comfort while at the same time helping the local environment. The villas are fully furnished for a comfortable life. The kitchens are equipped with modern appliances.
Explore the beauty and elegance of this development
See where Masaar Sequoia is located and explore the surrounding area
7H6X+23 Masaar Skate Park - Al Suyoh Suburb - Tilal - Sharjah - United Arab Emirates
Flexible payment options designed for your convenience
Handover: Q4 2025
Down Payment: See schedule above
Electronic bank transfers
Crypto-payments
Cash
Checks
Credit cards
Debit cards
Our sales team is ready to help you find the best payment option for your needs.
Call Sales Team