
Loading...
Prestige One introduces The Place, pinnacle of luxury living located in Dubai Sports City
Dubai Sports City - Dubai - UAE
Q4 2027
AED 1,491,000
Prestige One introduces The Place, pinnacle of luxury living located in Dubai Sports City. With a captivating architectural design spanning ground plus three parking levels and 19 residential floors, The Place stands as a beacon of the finest quality in the area, offering panoramic golf course views and top-tier amenities. The Place by Prestige One at Dubai Sports City is set to redefine luxury living. With its stunning views, exceptional amenities, and a variety of living options, it represents a unique opportunity for homeowners and investors alike. Whether you are looking for a comfortable and stylish home or an astute investment, The Place offers the perfect blend of luxury, quality, and value in Dubai Sports City. Residents of The Place will have exclusive access to world-class amenities designed to enhance their living experience. They can unwind at the rooftop infinity pool, which offers stunning views and a serene environment for relaxation. Additionally, every home boasts uninterrupted views of a lush golf course, providing residents with scenic panoramas right from their living spaces.
Explore the beauty and elegance of this development


Exceptional features designed to elevate your lifestyle
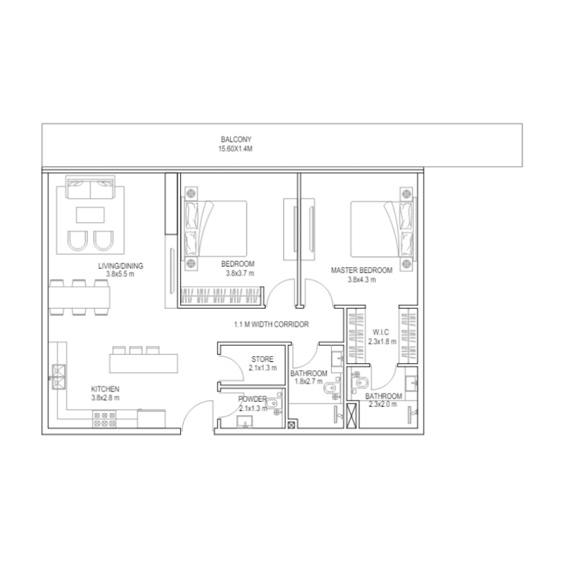
Explore our range of meticulously designed units
41 Units Available • Starting from AED 1,491,000
Showing 6 of 41 layouts
Unit 102
Unit 1003
Unit 1005
Unit 1402
Unit 1504
Unit 906
🏠Combined
Choose from our premium finishing packages
Modern finishing with high-quality materials, with boutique design by LACASA.
Explore the beauty and elegance of this development
See where Golf Place is located and explore the surrounding area
Dubai Sports City - Dubai - UAE
Flexible payment options designed for your convenience
Handover: Q4 2027
Down Payment: See schedule above
Electronic bank transfers
Crypto-payments
Cash
Checks
Credit cards
Debit cards
Our sales team is ready to help you find the best payment option for your needs.
Call Sales Team